里庄駅から徒歩4分の物件です。7.49坪の店舗です。駅に近く、園井里庄線沿いで利便性もよいため、様々なご利用ができます。
貸店舗 浅口郡里庄町大字新庄グリーンクレストnew
|
|
| 所在地 | 岡山県浅口郡里庄町大字新庄グリーンクレスト1番地1、1番地3 |
|---|---|
| 交通 | JR山陽本線 里庄駅 徒歩270m 徒歩4分 |
| 築年月 | 1982/3 | 新築/中古 | 中古 |
|---|---|---|---|
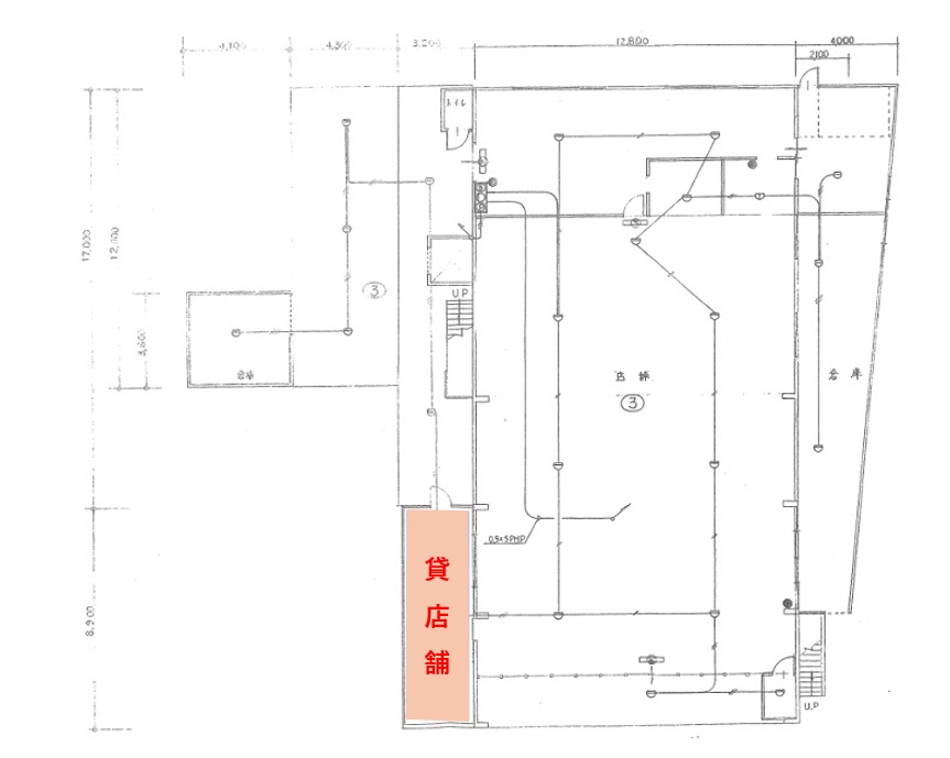
| 面積 | 24.78m² | 計測方式 | |
| バルコニー | 向き | ||
| 建物階数 | 地上2階 | 部屋階数 | 1階 |
| 建物構造 | 鉄骨造 | ||
| 間取内容 |
|
||
| 駐車場 | 空有 隣の貸店舗と共用になります。南側7台、北西側5台駐車可能。 | 取引態様 | 一般 |
| 引渡/入居時期 | 相談 | 現況 | 空家 |
| 地目 | 宅地 | 用途地域 | 無指定 |
| 都市計画 | 非線引き区域 | 地勢 | 平坦 |
| 土地面積 | 667.79m² | 土地面積計測方式 | 公簿 |
| 接道方向1 | 南東 | 接道間口1 | 18m |
| 接道種別1 | 公道 | 接道幅員1 | 12m |
| 接道方向2 | 西 | 接道間口2 | 13.5m |
| 接道種別2 | 公道 | 接道幅員2 | 6.5m |
| 周辺環境 | |||
| 設備・条件 | トイレ共同 エアコン 公営水道 排水浄化槽 駐車場有 駐輪場 電話 火災警報器(報知器) シャッター |
||
| 物件番号 | 0080 | 掲載期限日 | 2025/11/21 |
| 特記事項 | ・家財保険加入要。 ・家賃保証加入要。 ・道具類等、店舗内にあるものを利用される場合は、使用していただけます。 改装は借主負担になります。 ・駐輪場は隣の貸店舗と共用になります。南側7台、北東側5台。 ・トイレは隣の貸店舗と共用になります。 ・水道は立水栓を使用できます。 ・ケーブルテレビ及びケーブルテレビインターネットの配線はありますが、 2階と一緒になっています。必要な場合は、配線工事は借主負担になります。 ・2階は貸主居住区域になります。 ・引渡可能時期は、隣の貸店舗(121.53坪)の借主が決まってからになります。 |
||
Loading...
※物件掲載内容と現況に相違がある場合は現況を優先と致します。
有限会社 光枝不動産
〒714-0082 岡山県笠岡市一番町3番地の51
電話番号 0865-69-0601 / FAX番号 0865-69-0602
免許番号:岡山県知事(5)第4697号












