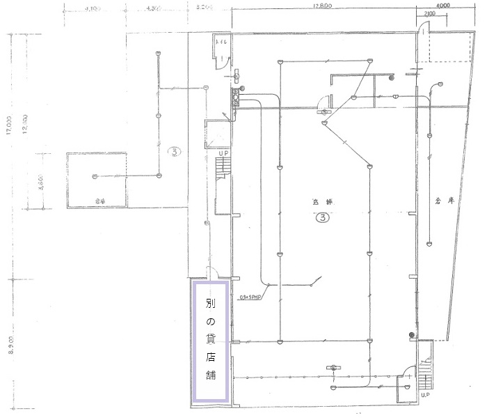
里庄駅から徒歩4分の物件です。2階建の1階部分が店舗になっており、121.53坪と広いです。バックヤードには材料置場、厨房、応接室、更衣室があります。駐車場もあり、利便性もよいため、様々なご利用ができます。
貸店舗 浅口郡里庄町大字新庄グリーンクレストup
|
|
| 所在地 | 岡山県浅口郡里庄町大字新庄グリーンクレスト1番地1、1番地3 |
|---|---|
| 交通 | JR山陽本線 里庄駅 徒歩270m 徒歩4分 |
| 築年月 | 1982/3 | 新築/中古 | 中古 |
|---|---|---|---|
| 面積 | 401.78m² | 計測方式 | |
| バルコニー | 向き | ||
| 建物階数 | 地上2階 | 部屋階数 | 1階 |
| 建物構造 | 鉄骨造 | ||
| 間取内容 |
|
||
| 駐車場 | 空有 南側に7台、北西側に5台あります。隣の貸店舗と共用になります。必要な場合は、西側にある里庄町の駐車場を借りることができます(別途里庄町との契約要)。 | 取引態様 | 一般 |
| 引渡/入居時期 | 相談 | 現況 | 空家 |
| 地目 | 宅地 | 用途地域 | 無指定 |
| 都市計画 | 非線引き区域 | 地勢 | 平坦 |
| 土地面積 | m² | 土地面積計測方式 | 公簿 |
| 接道方向1 | 南東 | 接道間口1 | 18m |
| 接道種別1 | 公道 | 接道幅員1 | 12m |
| 接道方向2 | 西 | 接道間口2 | 13.5m |
| 接道種別2 | 公道 | 接道幅員2 | 6.5m |
| 周辺環境 | |||
| 設備・条件 | ガスコンロ トイレ共同 プロパンガス 公営水道 排水浄化槽 駐車場有 駐輪場 電話 CATV 火災警報器(報知器) ビルトインエアコン 電動シャッター 無線LAN |
||
| 物件番号 | 0079 | 掲載期限日 | 2026/05/30 |
| 特記事項 | ・家財保険加入要。 ・家賃保証加入要。 ・レジスター、冷蔵、棚等を利用される場合は、使用していただけます。 改装は借主負担になります。 ・駐車場は、南に7台、北西側に5台あります。隣の貸店舗と共用になります。 ・必要な場合は、西側にある里庄町の駐車場を借りることができます(別途里庄町との契約要)。 ・トイレは隣の貸店舗と共用になります。 ・2階は貸主居住区域になります。 ・隣の店舗(7.49坪)は、別の貸店舗・事務所になります。 隣の店舗も借りたい場合はご相談ください。 |
||
Loading...
※物件掲載内容と現況に相違がある場合は現況を優先と致します。
有限会社 光枝不動産
〒714-0082 岡山県笠岡市一番町3番地の51
電話番号 0865-69-0601 / FAX番号 0865-69-0602
免許番号:岡山県知事(5)第4697号
























